Price £1,150 pcm - Under Offer


  • 3 Double Bedrooms
  • Close to Town Centre
  • Hive Heating System
  • Honeywell Alarm System
  • Character Property
  • Freshly Decorated
  • Close to Tandle Hills Country Park
  • New carpets throughout
  • Cottage Style soild oak Kitchen

SPACIOUS THREE BEDROOM END-TERRACE | CHARACTER PROPERTY LOCATED IN ROYTON

Habitat are pleased to present this LARGER THAN AVERAGE, three double bedroom, End-Terrace CHARACTER PROPERTY to market for long term rental.

Ideally located IN CLOSE PROXIMITY to Royton town centre, excellent schools, restaurants, nightlife and local amenities, with easy access to the North West motorway network.

Inside, the property offers well presented and characterful accommodation comprising:
-Entrance hall
-Open plan lounge and dining area with feature fireplace
-Cottage style solid oak kitchen with a double electric oven and hob.
- Naturally well lit rooms with high ceilings.
- Solid wood doors, skirting, architraves and banister railings throughout.
- Property is currently having renovation works undertaken.
- New taps fitted throughout
-New shower Installed

To the first floor are two generous double bedrooms with inbuilt rustic pine fitted wardrobes fitted to both rooms. A classic family bathroom featuring tiled walls, a newly enamelled cast iron bath, shower, sink and toilet. A first floor staircase leads to a spacious attic bedroom with ample storage and varnished real wood floorboards throughout.

Outside there is a gated side passage leading to a brick outbuilding used for storage and a private enclosed, low maintenance rear yard which is paved with Yorkshire stone. There is the bonus of land to the rear as a potential for gardening enthusiasts and offering views of Tandle Hills.

FURTHER BENEFITS INCLUDE:
- uPVC double glazing with modern Venetian blinds throughout
-Gas central heating via an A+ rated condensing Worcester boiler.
-Cast iron character radiators.
- Hive smart thermostat (mobile app control)
- Full fitted Honeywell alarm system.
- Off-street parking to the side on Highlands Road.
-Ample understairs storage for a washer and dryer.
-Kitchen space for a fridge freezer and undercounter space for a dishwasher.
- led spotlights and RCBO protected distribution board.
- uPVC 7 lever mortice deadlock, double glazed- front and back doors.

This property offers excellent space, light, charm, and convenience, making it ideal for professional couples or small families seeking a well-maintained home in a popular location.

EPC RATING E

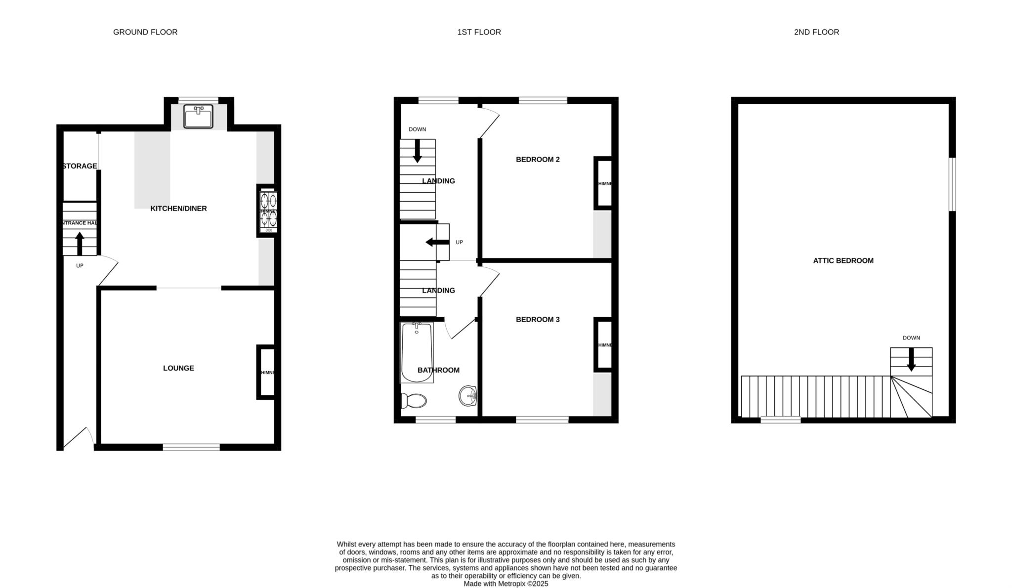
Entrance Hall - 4.77m (15'8") x 1.24m (4'1")
A welcoming entrance hallway with stairs to the first floor and a door leading through to the kitchen and lounge.

Open Plan Kitchen/Diner - 4.36m (14'4") x 4.31m (14'2")
A large cottage style kitchen with solid oak units and worktops, Farmhouse style sink and double electric oven and hob. Offering breakfast bar dining plus a handy utility space under the stairs. A door to the rear leads through to the rear garden, and this space is open through to the lounge at the front.


Lounge - 4.08m (13'5") x 3.64m (11'11")
Bright and spacious lounge with feature fireplace


Landing - 5.32m (17'5") x 1.54m (5'1")
A generous first floor landing provides access to both first floor bedrooms and family bathroom, and A first floor staircase leads to the spacious attic bedroom.

Bedroom One (Attic) - 5.2m (17'1") x 2.99m (9'10")
A first floor staircase leads to a spacious attic bedroom with ample storage and varnished real wood floorboards throughout.

Bedroom Two - 4.32m (14'2") x 3.43m (11'3")
A generous double bedroom to the rear of the property with inbuilt rustic pine fitted wardrobes.

Bedroom Three - 3.64m (11'11") x 3.43m (11'3")
A generous double bedroom to the front of the property with inbuilt rustic pine fitted wardrobes.

Bathroom - 2.06m (6'9") x 1.79m (5'10")
A classic family bathroom featuring tiled walls, a newly enamelled cast iron bath, shower, sink and toilet.

Garden
Outside there is a gated side passage leading to a brick outbuilding used for storage and a private enclosed, low maintenance rear yard which is paved with Yorkshire stone. There is the bonus of land to the rear as a potential for gardening enthusiasts and offering views of Tandle Hills.

Council Tax Band
Council Tax Band A

Viewings
Viewings strictly by appointment with the agent.

Heating, Glazing, Security
Gas central heating and double glazing.

Services
All main services are installed.
No checks have been made of any services (water, electricity, gas and drainage) heating appliances or any other electrical or mechanical equipment in this property.


Disclaimer
Habitat Oldham themselves and the vendors/lessors of this property give notice that these particulars have been prepared in good faith having regard to the property misdescriptions act (1991). Measurements are intended for descriptive purposes only and are believed to be correct but any intending purchasers should not rely on them as statements or representations of fact. Any intending purchaser must satisfy themselves by inspection or otherwise as to the information provided and condition of the property and no warranty is given by the vendor, their agents or any other person in their employment. The property is offered subject to contract and still being available at the time of enquiry and no responsibility can be accepted for any loss or expenses incurred in viewing.



Deposit: £1,326.00

Minimum Tenancy : 12 months

Council Tax
Oldham Council, Band A

Notice
All photographs are provided for guidance only.

The following are permitted payments which we may request from you:

a) The rent
b) A refundable tenancy deposit (reserved for any damages or defaults on the part of the tenant) capped at no more than five weeks' rent where the annual rent is less than £50,000, or six weeks' rent where the total annual rent is £50,000 or above.
c) A refundable holding deposit (to reserve a property) capped at no more than one week's rent.
d) Payments to change the tenancy when requested by the tenant, capped at £41.67 + Vat £8.43 Total £50.00, or reasonable costs incurred if higher.
e) Payments associated with early termination of the tenancy, when requested by the tenant.
f) Payments in respect of utilities, communication services, TV licence and council tax.
g) A default fee for late payment of rent and replacement of a lost key/security device, where required under a tenancy agreement

Floor Plan
EER Chart

The Energy-Efficiency Rating is a measure of a home's overall efficiency. The higher the rating, the more energy-efficient the home is, and the lower the fuel bills are likely to be.

Utility Supply Type
Electric Mains Supply
Gas Mains Supply
Water Mains Supply
Sewerage Mains Supply
Broadband Cable
Telephone Landline

Other Items Description
Heating Gas Central Heating
Garden/Outside Space Yes
Parking No
Garage No

Broadband Coverage Highest Available Download Speed Highest Available Upload Speed
Standard 2 Mbps 0.4 Mbps
Superfast 52 Mbps 9 Mbps
Ultrafast 1800 Mbps 220 Mbps

Mobile Coverage Indoor Voice Indoor Data Outdoor Voice Outdoor Data
EE Enhanced Enhanced Enhanced Enhanced
Three Enhanced Enhanced Enhanced Enhanced
O2 Enhanced Likely Enhanced Enhanced
Vodafone Likely Likely Enhanced Enhanced

Broadband and Mobile coverage information supplied by Ofcom.


marker icon

//Malbani - Xmas logo toggle display